Zur Navigation wechseln Zum Inhalt wechseln Zum Footer wechseln

Residieren im Schloss Pouch – Eleganz auf 129 m² direkt am Großen Goitzschesee

ImmoNr
2025933_5
Objektart
Wohnung
Objekttyp
Etagenwohnung
Vermarktungsart
Miete
PLZ
06774
Ort
Muldestausee/ Pouch
Land
Deutschland
Kaltmiete
1.685,00 €
Wohnfläche
ca. 129 m²
Anzahl Zimmer
3
Anzahl Schlafzimmer
2
Anzahl Badezimmer
1
Anzahl sep. WC
1
Befeuerung
Luft/Wasser Wärmepumpe
Fußbodenbelag
Fliesen, Parkett
Etagenzahl (Objekt)
4
Aufzug
Kein Fahrstuhl

Zur Immobilie

Zeitlose Eleganz trifft modernen Komfort – großzügig wohnen im Schloss Pouch

Kurzbeschreibung:
Ein Zuhause mit Geschichte: Diese hochwertig sanierte 3-Zimmer-Wohnung im Schloss Pouch verbindet klassische Architektur mit zeitgemäßem Wohnkomfort. Auf ca. 129 m² erwarten Sie großzügige Räume mit edlem Fischgrätparkett, ein Schlafzimmer mit direktem Zugang zum stilvollen Ensuite-Masterbad, ein Kinderzimmer sowie ein separates Gäste-WC. Der offen gestaltete Wohn- und Essbereich überzeugt durch seine Helligkeit, Raumhöhe und geschmackvoller Atmosphäre. Eine Fußbodenheizung sorgt für angenehmes Raumklima. Zudem ist in naher Zukunft ein Glasfaseranschluss verfügbar. Erstbezug nach Kernsanierung – in ruhiger Lage nahe dem Goitzschesee.

Besondere Ausstattungsmerkmale:

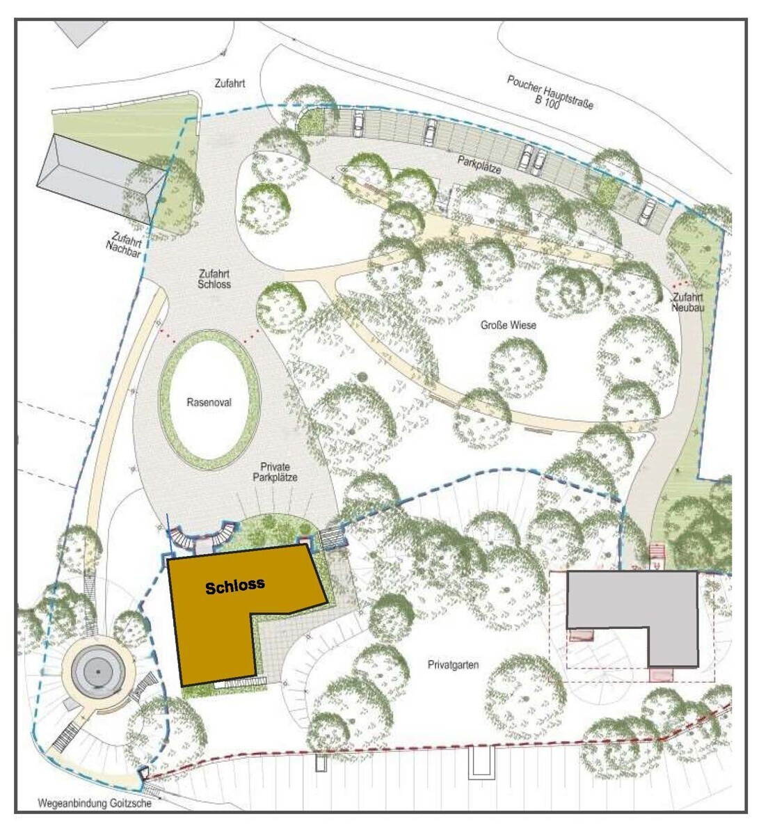
– Wohnen im Schloss – umgeben von weitläufigem, parkähnlichem Gelände
– Drei großzügige, lichtdurchflutete Zimmer mit Echtholz-Fischgrätparkett
– Schlafzimmer mit Ensuite-Bad (innenliegend, hochwertig ausgestattet)
– Geräumiges, helles Kinderzimmer
– Separates Gäste-WC für zusätzlichen Komfort
– Hohe Decken, stilvoll aufgearbeitete historische Details
– Effiziente Wärmepumpe & Fußbodenheizung in allen Räumen
– Netzwerkdosen in jedem Zimmer, Glasfaseranschluss in Planung
– Separater Kellerraum und Fahrradabstellbereich

Hausreinigung, Winterdienst und Gartenpflege im Service enthalten

Lage:
Ruhig, naturnah, hervorragend angebunden: Im Erholungsgebiet Muldestausee/Pouch wohnen Sie mitten im Grünen – nur ca. 25 Minuten von Leipzig und 5 Kilometer von Bitterfeld entfernt. Einkaufsmöglichkeiten, ÖPNV, Schulen und vielfältige Freizeitangebote befinden sich in der Nähe.

Schloss Pouch – wohnen mit Geschichte, leben mit Stil.

Gebäude & Bauweise
– Schlossgebäude, Baujahr 1885 – umfassend kernsaniert 2023-2025
– Massivbauweise mit ca. 60 cm starken Außenwänden

Innenausstattung
– Fenster: Hochwertige 2-fach verglaste Holzfenster (innen weiß, außen honigbraun)
– Türen: Stilvolle weiße Zimmertüren mit messing-polierten Griffen
– Wohnräume: Echtholzparkett im edlen französischen Fischgrät (Eiche natur)
– Weiße, glatte oder leicht strukturierte Wand- und Deckenflächen

Bad
– Masterbad mit edlen ozean-grünblauen Wandfliesen (Fischgrät) und grau-blau gesprenkelten Bodenfliesen
– Ebenerdige, geräumige Dusche mit Glasabtrennung
– Stilvoller Handtuchheizkörper & WC

Abstell-/Hauswirtschaftsraum:
– Beige strukturierte Bodenfliesen
– Waschmaschinenanschluss vorhanden

Küche:
– Anschlüsse für Herd und Geschirrspüler
– Steckdosen optimal für Küchenplanung vorbereitet

Technik & Komfort
– Heizung: Luft-Wasser-Wärmepumpe, Fußbodenheizung in allen Räumen
– Warmwasser: Elektronischer Durchlauferhitzer
– Multimedia: Netzwerkdosen in allen Wohnräumen, TV-Empfang über Internet, Glasfaseranschluss ab November 2025 möglich – bis dahin: 250 MBit/s via Telekom verfügbar
– Gegensprechanlage der Marke Elcom

Parken & Abstellflächen
– Eigener Tiefgaragenstellplatz (optional mit Wallbox)
– Eigener Kellerraum
– Fahrradraum vorhanden
– Separater Müllsammelraum im Keller






Außenanlagen & Service
– Gepflegte, parkähnliche Außenanlage
– Hausreinigung, Gartenpflege und Winterdienst durch externen Dienstleister inklusive
– Rundum-Sorglos-Paket für stressfreies Wohnen

Nutzungsart
Wohnen
Endenergiebedarf
98,9 kWh/(m²a)
Energieausweis
Bedarfsausweis
Energieausweis gültig bis
14.10.2032
Energieeffizienzklasse
C
wesentlicher Energieträger
Gas

Die Gemeinde Pouch liegt direkt am Großen Goitzschesee, der mit seinen rund 25 km² Wasserfläche alle Vorrausetzungen für ein erholsames Wohnen im Ferienambiente bietet. Das Westufer des Sees bietet ideale Voraussetzungen, um den Blick auf das Wasser und die Sonne genießen zu können.

Rund um den See sind bereits touristische Anziehungspunkte entstanden, die dafür sorgen, das Ferienwohnerlebnis zur schönsten Zeit des Jahres werden zu lassen. Eingebettet zwischen Goitzschesee und Muldestausee und ca. 5 km von Bitterfeld entfernt, befindet sich der Ort Pouch in etwas erhöhter Aussichtslage inmitten des Erholungs- und Naturschutzgebietes.

Die größten Arbeitgeber der Region (z.B. Flughafen, DHL, Porsche, BMW oder Amazon) befinden sich im Norden Leipzigs, also in der Anbindung sehr gut. Der Norden Leipzigs ist in rund 25 Autominuten erreichbar. Ins Leipziger Stadtzentrum sind es rund 35 Autominuten. Es besteht außerdem eine sehr gute Anbindung an das öffentliche Verkehrsnetz nach Leipzig, Halle und Dessau.

Die Region bietet sehr viele Möglichkeiten für Freizeitsportler wie Segler, Surfer, Reiter, Wanderer, Jogger und begeisterte Radfahrer. Der nahe gelegene Naturpark Dübener Heide ist ein begehrtes Naherholungsgebiet und lädt zum Verweilen ein.

06774 Muldestausee/ Pouch, Deutschland

Residieren im Schloss Pouch – Eleganz auf 129 m² direkt am Großen Goitzschesee

Bestimmen Sie selbst die Blickrichtung und tauchen Sie in die 360Grad Begehung ein.

Einfach auf den Link klicken und eintauchen:
https://my.matterport.com/show/?m=5d5tsdB4wRB

Das Objekt befindet sich derzeit noch in der Sanierungsphase. Die in den Grundrissen verwendeten Materialien, Farben und Möblierungen sind nur beispielhaft gewählt und dienen ausschließlich zur besseren Vorstellung und Visualisierung.

Unsere Inserate werden sorgfältig und professionell mit den Angaben und Informationen der Eigentümer erstellt. Eine Haftung unsererseits wird daher ausgeschlossen.

Sie können mit unserem Büro jederzeit sehr gerne ein Besichtigungstermin abstimmen.

Ihr Ansprechpartner

Michael Panterott

Herr Michael Panterott

Immobilienvermarktung M. Panterott

Tel.:
034935104160
E-Mail:
kontakt@ivpanterott.de

Greppiner Straße 2
06792 Sandersdorf-Brehna

Weitere Immobilien

06749 Bitterfeld-Wolfen/ Bitterfeld

Energieeffiziente 3-Raumwohnung mit Balkon und Stellplatz in Bitterfeld

ImmoNr
2024572-1.1
Objektart
Wohnung
Objekttyp
Dachgeschoss
Vermarktungsart
Miete
Anzahl Zimmer
3
Anzahl Schlafzimmer
2
Wohnfläche
ca. 101 m²

06774 Muldestausee/ Pouch

Loft-Charme trifft Moderne direkt am Goitzsche-See: 4 Zimmer, 2 Balkone, Garage & Stellplatz

ImmoNr
2025909_3.2-3
Objektart
Wohnung
Objekttyp
Etagenwohnung
Vermarktungsart
Miete
Anzahl Zimmer
4
Anzahl Schlafzimmer
3
Wohnfläche
ca. 173 m²

06774 Muldestausee/ Pouch

Wohnen im Schloss Pouch – pure Eleganz auf rund 97,5 m² direkt am großen Goitzsche-See

ImmoNr
2025933_6/3
Objektart
Wohnung
Objekttyp
Etagenwohnung
Vermarktungsart
Miete
Anzahl Zimmer
3
Anzahl Schlafzimmer
1
Wohnfläche
ca. 98 m²

06774 Muldestausee/ Pouch

Wohnen im Schloss Pouch – pure Eleganz auf rund 126 m² mit Loggia direkt am großen Goitzsche-See

ImmoNr
2025933_8
Objektart
Wohnung
Objekttyp
Dachgeschoss
Vermarktungsart
Miete
Anzahl Zimmer
4
Anzahl Schlafzimmer
2
Wohnfläche
ca. 126 m²

06774 Muldestausee/ Pouch

Exklusive Erdgeschosswohnung mit Garten, Terrasse und Stellplatz am Muldestausee in Pouch

ImmoNr
2025731_2v
Objektart
Wohnung
Objekttyp
Erdgeschoss
Vermarktungsart
Miete
Anzahl Zimmer
2
Anzahl Schlafzimmer
1
Wohnfläche
ca. 66 m²

    * Pflichtfelder