Zur Navigation wechseln Zum Inhalt wechseln Zum Footer wechseln

Kapitalanlage mit 8,8% Bruttorendite! 24 Wohneinheiten und optimaler Verkehrsanbindung in Bitterfeld

ImmoNr
2025987
Objektart
Haus
Objekttyp
Mehrfamilienhaus
Vermarktungsart
Kauf
PLZ
06749
Ort
Bitterfeld-Wolfen
Land
Deutschland
Kaufpreis
980.000,00 €
Wohnfläche
ca. 1.342 m²
Anzahl Wohneinheiten
24
Befeuerung
Gas
Etagenzahl (Objekt)
4

Zur Immobilie

Das Mehrfamilienhausensemble in der Bahnhofstraße 12–14 bietet Kapitalanlegern eine solide und nachhaltig rentierliche Investitionsmöglichkeit im Herzen von Bitterfeld. Auf insgesamt vier Etagen verteilen sich 24 gut geschnittene Wohneinheiten mit einer Gesamtmietfläche von rund 1.342 m². Die Immobilie befindet sich auf einem ca. 957m² großen Grundstück und überzeugt durch eine massive Bauweise, eine gedämmte Fassade sowie eine fortlaufend modernisierte Haustechnik.

Die Beheizung erfolgt über eine effiziente Gaszentralheizung (Brötje, BJ 2006). Separate Kellerabteile, Wasch- und Trockenkeller sowie großzügige Fahrradräume bieten den Mietern zusätzlichen Komfort. Die gepflegte Gesamterscheinung des Objektes sorgt für ein angenehmes Wohnumfeld mit langfristig stabiler Vermietbarkeit.


Lagevorteil für Mieter und Investoren:
Die Immobilie befindet sich nur wenige Meter vom modern ausgestatteten Bahnhof Bitterfeld entfernt und bietet damit hervorragende Anbindungen nach Leipzig, Halle, Dessau und in die umliegenden Wirtschaftszentren Mitteldeutschlands. Sämtliche Nahversorger, Ärzte, Schulen und ÖPNV-Anschlüsse sind fußläufig erreichbar.

Die Nähe zur Goitzsche – einem der attraktivsten Naherholungsgebiete Sachsen-Anhalts – steigert die Wohnqualität zusätzlich. Der Goitzschesee mit Radwegen, Bade- und Wassersportbereichen sowie Gastronomie ist in wenigen Minuten erreichbar und trägt zur hohen Lebensqualität in der Region bei.


Zukunftsorientierter Nachfrageimpuls:
In fußläufiger Entfernung entsteht bis 2031 das Mitteldeutsche Bildungszentrum – ein bedeutendes Großprojekt für Ausbildung und berufliche Qualifikation. Dadurch wird eine zusätzliche, stetige Nachfrage nach kompakten, bezahlbaren Wohnungen erwartet. Die Struktur des Objekts mit überwiegend 2- und 3-Raum-Einheiten eignet sich ideal für Studenten, Auszubildende sowie junge Berufseinsteiger.


Fazit:
Mit einer stabilen Vermietungssituation, sehr guter Verkehrsanbindung, hoher Wohnattraktivität und zusätzlichem Nachfragepotenzial durch das entstehende Bildungszentrum bietet dieses Mehrfamilienhaus eine langfristig sichere und renditestarke Anlageperspektive.

Bahnhofstraße 12-14:
– Grundstücksgröße: 957 m²
– Gesamtmietfläche: 1.341,76 m²
– Etagenanzahl: 4
– Anzahl Einheiten: 24 (12x 2 – RWE, 9x 3 – RWE, 3x 4 – RWE)

Gebäudedetails:
– Baujahr: 1924, Kernsanierung in den 90er Jahren
– Massivbauweise mit gedämmtr und verputzter Fassade
– Rot eingedecktes Ziegeldach mit Gauben
– Gaszentralheizung -Brötje- BJ 2006 – Beheizung über Heizkörper
– Energieträger: Gas
– Warmwasseraufbereitung: über Gaszentralheizung
– Doppelt verglaste weiße Kunststofffenster inweiß
– Moderne Wechselsprechanlagen in allen Aufgängen


Gemeinschafts- & Nutzflächen:
– Vollunterkellerung mit separaten Kellerabteilen für jede Einheit
– Wasch- und Trockenkeller in allen drei Häsuern
– Fahrradräume

Vermietung und Wirtschaftlichkeit:
– 20 von 24 Wohnungen sind aktuell vermietet
– Jahres-IST-Nettomieteinnahmen: 72.288 €/Jahr
– Jahres-SOLL-Nettomieteinnahmen: 87.054 €/Jahr
– Aktuelle Durschnittsmiete: ca. 5,43/m²

Eine komplette Aufstellung aller Einheiten und deren Vermietungssituation liegt vor!

Nutzungsart
Anlage
Baujahr lt. Energieausweis
1924
Endenergieverbrauch
91 kWh/(m²a)
Energieausweis
Verbrauchsausweis
Energieausweis gültig bis
16.11.1930
Energieeffizienzklasse
C
wesentlicher Energieträger
Gas

Das Mietobjekt liegt im Ortsteil Bitterfeld in der Stadt Bitterfeld-Wolfen im Bundesland Sachsen-Anhalt. Bitterfeld-Wolfen liegt etwa 25 km nordöstlich von Halle (Saale) und etwa 35 km nördlich von Leipzig. Die maximale Ausdehnung beträgt sowohl in Nord-Süd- als auch in Ost-West-Richtung jeweils etwa zehn Kilometer. Östlich befindet sich der Muldestausee, südöstlich der Goitzsche-See mit den Hafenanlagen, westlich das Sandersdorfer Strandbad. Die Stadt liegt im Naturraum Bitterfelder Bergbaurevier. Bitterfeld-Wolfen zählt zu den führenden Industriestandorten Mitteldeutschlands. Die Stadt verfügt über zehn Industrie- und Gewerbegebiete mit über 1.500 ha Nutzfläche und damit die größte zusammenhängende Industriefläche in Mitteldeutschland. Mit über 20.000 Arbeitsplätzen bietet die Stadt optimale Zukunftsvoraussetzungen für junge Familien.

Vor allem aber kann die Stadt mit einem breiten Freizeitangebot überzeugen. So liegt Sie direkt an dem Goitzsche See. Hier kann man in seiner Freizeit Schwimmen, Rudern, Angeln, Wakeboarden oder sogar vom Katamaran aus, die Reize des Goitzscheufers genießen.
Auch bietet der Goitzsche See durch seine ausgebauten Rundwege ideale Voraussetzungen zum Wandern, Joggen, Fahrrad fahren, Walken und Inliner fahren. Zahlreiche Pauseninseln laden alle Rundwegnutzer zum gemütlichen Rasten ein.
Der See bietet alles was das Freizeitherz begehrt!

06749 Bitterfeld-Wolfen, Deutschland

Kapitalanlage mit 8,8% Bruttorendite! 24 Wohneinheiten und optimaler Verkehrsanbindung in Bitterfeld

– Maklerprovision:

Die Vergütung bei der Vermittlung dieser Immobilie trägt zur Hälfte der Verkäufer und zur Hälfte der Käufer.
Somit wird diese Immobilie so angeboten, dass beiderseitig ein Maklervertrag abgeschlossen wird. Der Immobilienmakler ist sowohl Interessenvertreter des Verkäufers, sowie des Käufers und vereinbart darüber hinaus eine Vergütung mit beiden Parteien. Die Käufer-Provision beträgt 3,57% vom Kaufpreis inkl. MwSt. Die Käufer-Provision ist verdient und fällig mit notarieller Beurkundung. Der Immobilienmakler hat einen provisionspflichtigen Maklervertrag in gleicher Höhe mit dem Verkäufer abgeschlossen.

– Hinweis zur Bildbearbeitung:

Zur Wahrung der Privatsphäre der Nachbarschaft sowie zur optimierten Darstellung der Immobilie wurden einige Aufnahmen digital bearbeitet. Dabei kann es insbesondere in Bezug auf angrenzende Grundstücke oder deren Umgebungsdarstellung zu Abweichungen vom tatsächlichen Erscheinungsbild kommen. Die wesentlichen Merkmale des angebotenen Objekts sind authentisch dargestellt.

Zum angebotenen Objekt liegen nachfolgende weitere Informationen und Dokumente vor:

– aktuelles Grundbuch und Flurkarte
– Energieausweis gültig bis 16.11.2030
– Mietverträge und evtl. Nachträge
– Mieterliste mit Nettokaltmieten und Kautionsübersicht
– Betriebskostenabrechnungen 2023, 2024
– Nachweis zur Gebäudeversicherung inkl. Beitragsrechnung
– Dienstleistungs- und Gerätemietverträge
– Altlastenauskunft vom 13.11.2025
– Baulastenauskunft vom 05.11.2025

Nach erfolgter Objektbesichtigung und vorliegendem Kaufinteresse können die Dokumente und Informationen kurzfristig zur Verfügung gestellt werden.

Ein Besichtigungstermin kann mit unserem Büro jederzeit vereinbart werden.


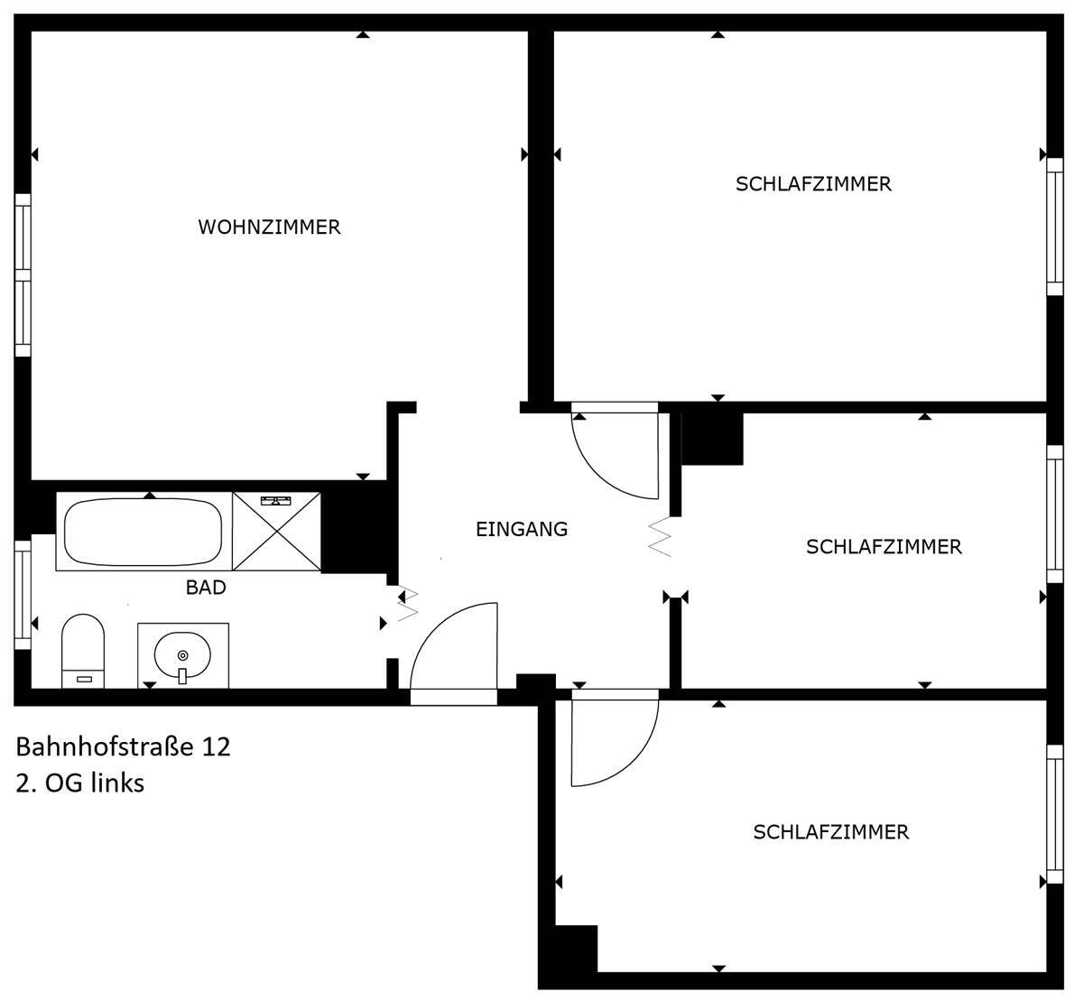
Virtuelle 360grad Begehung:
– Hier der Link zur Wohnung Bahnhofstraße 12, 2. OG links:
https://my.matterport.com/show/?m=VUYSvaaJ8kh

– Hier der Link zur Wohnung Bahnhofstraße 14, 2. OG links:
https://my.matterport.com/show/?m=vGJNwjms7Xh

Ihr Ansprechpartner

Michael Panterott

Herr Michael Panterott

Immobilienvermarktung M. Panterott

Tel.:
034935104160
E-Mail:
kontakt@ivpanterott.de

Greppiner Straße 2
06792 Sandersdorf-Brehna

Weitere Immobilien

06749 Bitterfeld-Wolfen

Attraktives Geschäftshaus mit 8,2 Bruttorendite – langfristige Kapitalanlage

ImmoNr
2025391
Objektart
Haus
Objekttyp
Geschäftshaus
Vermarktungsart
Kauf
Grundstücksgröße
ca. 2.110 m²

06766 Bitterfeld-Wolfen

Vollvermietetes Wohn- und Geschäftshaus mit 7 Einheiten in zentraler Lage von Wolfen

ImmoNr
2024724_3
Objektart
Haus
Objekttyp
Wohn- und Geschäftshaus
Vermarktungsart
Kauf
Anzahl Zimmer
6
Grundstücksgröße
ca. 1.621 m²
Wohnfläche
ca. 438 m²

06774 Muldestausee

Exklusiver Wohneigentumskomplex mit eigenen Gärten eingebettet in der grünen Seenlandschaft Pouch

ImmoNr
2024731
Objektart
Haus
Objekttyp
Mehrfamilienhaus
Vermarktungsart
Kauf
Grundstücksgröße
ca. 1.466 m²
Wohnfläche
ca. 516 m²

06731 Bitterfeld-Wolfen

Willkommen in Greppin: familienfreundliche Doppelhaushälfte mit großem Grundstück für Ihre Ideen

ImmoNr
2025998-1
Objektart
Haus
Objekttyp
Doppelhaushälfte
Vermarktungsart
Kauf
Anzahl Zimmer
3
Anzahl Schlafzimmer
2
Grundstücksgröße
ca. 618 m²
Wohnfläche
ca. 130 m²

06749 Bitterfeld-Wolfen

Gemütliches Reihenmittelhaus in Bitterfeld mit Garten – ideal zum Einziehen oder Vermieten

ImmoNr
20251014
Objektart
Haus
Objekttyp
Reihenhaus
Vermarktungsart
Kauf
Anzahl Zimmer
3
Anzahl Schlafzimmer
2
Grundstücksgröße
ca. 230 m²
Wohnfläche
ca. 92 m²

    * Pflichtfelder